Deposito in affitto

Montevarchi, Via Cilembrini
€ 650 / mese
2 locali 2 locali
125 Mq 125 Mq
1 bagno 1 bagno

Deposito in affitto

Montevarchi, Via Cilembrini

Descrizione annuncio

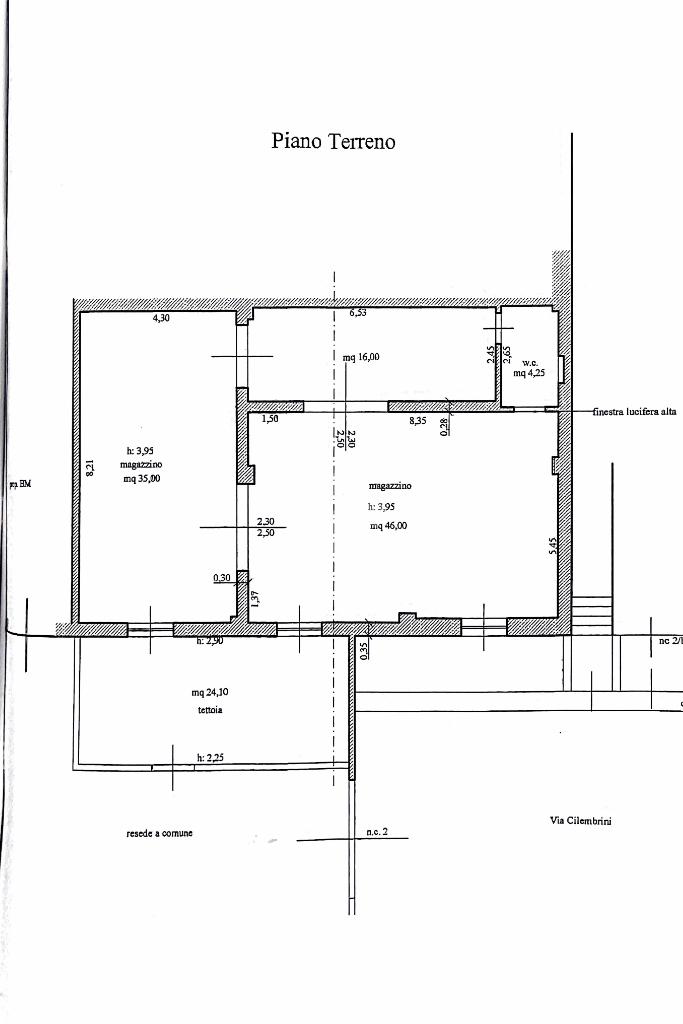
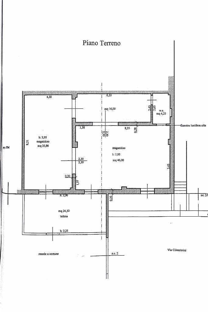
Proponiamo in locazione un deposito di 125 m² situato al piano terra , Montevarchi. L'immobile è posizionato in una via principale.

Il locale presenta ampi spazzi e ben distribuiti, che ne enfatizzano la versatilità e offrono possibilità di adattamento e personalizzazione.

Chiamaci e fissa subito un appuntamento Immobili per l'Impresa è la divisione del Gruppo Tecnocasa specializzata nel settore commerciale, direzionale, logistico ed aziendale. Questa divisione è presente nel territorio di Firenze e provincia dal 2012 e supporta le agenzie Tecnocasa già presenti nel territorio da oltre 20 anni. Gli agenti immobiliari che fanno parte della struttura hanno una formazione tecnica specifica, così da poter offrire ai clienti un servizio altamente specializzato. All'interno dell'agenzia inoltre vengono utilizzati sistemi innovativi dedicati esclusivamente a tutti coloro i quali hanno necessità immobiliari legate al settore. Nello specifico l'agenzia tratta: negozi, magazzini, laboratori, capannoni, depositi oltre a cessioni aziendali quali attività di somministrazione, ricettive e buonuscita. Possiedi un immobile commerciale o gestisci un'attività commerciale? Chiamaci e fissa subito un appuntamento: Ogni agenzia ha un proprio titolare ed e' autonoma - Le presenti informazioni non costituiscono elemento contrattuale.

Mostra tutto

Nelle vicinanze

Trasporto pubblico Trasporto pubblico
Montevarchi-Terranuova
Montevarchi-Terranuova
970 m
Trasporto pubblico
2,6 Km
Ricariche auto elettriche Ricariche auto elettriche
Coop.fi Montevarchi | EnelX
1,9 Km
Agriturismo Villa le Vigne
2,9 Km
Scuole Scuole
Scuole
100 m
Liceo Benedetto Varchi
1,3 Km
Farmacia Farmacia
Farmacia Comunale 2
1,0 Km
Comunale 3
2,0 Km
Supermercati Supermercati
Coop.fi- Montevarchi
1,9 Km
EuroSpin
2,6 Km
Negozi Negozi
Coop
900 m
OVS Kids
920 m
Albatros
1,9 Km
Piazza Italia
2,0 Km
Prada Outlet
2,2 Km
Bar Bar
Bar
1,6 Km
Ristoranti Ristoranti
La Vasca
290 m
La Taverna degli Artisti
450 m
la buca di Ipo
780 m
Pak Kabab & Pizza
850 m
Ristorante Castellucci
1,0 Km
Mostra tutto

Caratteristiche

Rif.:
61154959
Piano:
Terra di 2
Totale piani:
2
Posti auto:
3
Condizionamento:
Autonomo
Ascensore:
No
Mostra tutto
Prezzo Prezzo
€ 650 / mese

Classe Energetica

G
G
G
G
G
G
G
G
G
EP globale non rinnovabile:
175.00 kW h/m² anno
EP globale rinnovabile:
175.00 kW h/m² anno
EP invernale del fabbricato:
EP estiva del fabbricato:
Anno di costruzione:
1967
Riscaldamento:
Autonomo
Tipo impianto:
Ad aria
Tipo alimentazione:
Aria

Ti interessa visionare l'immobile?

Fissa un appuntamento  Fissa un appuntamento

Richiedi informazioni

Clicca su Leggi per aprire l'informativa
* Questi campi sono obbligatori
Affiliato
Impresa Valdarno Sas
Via Roma, 33/A 50063 Figline E Incisa Valdarno (FI)

Il nostro staff


  • Matteo Checcaglini
    Affiliato

  • Simon Hamitaj
    Collaboratore

  • Giulia Melissi
    Collaboratrice

  • Giammarco Catarzi
    Affiliato
Via Roma, 33/A 50063 Figline E Incisa Valdarno (FI)
Zona: Figline e Incisa Valdarno
Mostra su mappa
Orari: Dal Lunedì al Venerdì dalle 09:00 - 13:00; 15:30 - 20:00, Sabato dalle 09:00 - 13:00.
Affiliato
Impresa Valdarno Sas
Via Roma, 33/A 50063 Figline E Incisa Valdarno (FI)

2026 Tecnocasa Franchising S.p.A. - P. IVA 08365160152 - Via Monte Bianco 60/A 20089 Rozzano (MI). Ogni agenzia ha un proprio titolare ed è autonoma. Privacy policy | Policy utilizzo | Cookie policy